
19 Hollingsworth ST Cramahe, ON K0K 1S0
2 Beds
3 Baths
UPDATED:
Key Details
Property Type Townhouse
Sub Type Att/Row/Townhouse
Listing Status Active
Purchase Type For Sale
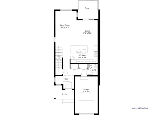
Approx. Sqft 1500-2000
Subdivision Colborne
MLS Listing ID X12870540
Style 2-Storey
Bedrooms 2
Tax Year 2026
Property Sub-Type Att/Row/Townhouse
Property Description
Location
State ON
County Northumberland
Area Northumberland
Rooms
Family Room No
Basement Full, Unfinished
Kitchen 1
Interior
Interior Features Auto Garage Door Remote, ERV/HRV, Rough-In Bath, Storage, Water Heater Owned
Cooling Central Air
Fireplace No
Heat Source Gas
Exterior
Exterior Feature Deck
Parking Features Private
Garage Spaces 1.0
Pool None
Waterfront Description None
Roof Type Asphalt Shingle
Topography Flat
Lot Frontage 35.38
Lot Depth 114.83
Total Parking Spaces 2
Building
Building Age New
Unit Features Arts Centre,Golf,Park,Rec./Commun.Centre,School,School Bus Route
Foundation Poured Concrete
Others
Security Features Carbon Monoxide Detectors,Smoke Detector
ParcelsYN No





