
11 Spruce Pines CRES Toronto C13, ON M4A 1C5
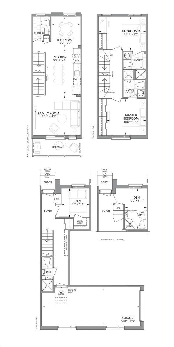
5 Beds
5 Baths
UPDATED:
Key Details
Property Type Condo, Townhouse
Sub Type Att/Row/Townhouse
Listing Status Active
Purchase Type For Rent
Approx. Sqft 1500-2000
Municipality Toronto C13
Subdivision Victoria Village
MLS Listing ID C12897166
Style 3-Storey
Bedrooms 5
Property Sub-Type Att/Row/Townhouse
Property Description
Location
State ON
County Toronto
Community Toronto C13
Area Toronto
Rooms
Family Room Yes
Basement None
Kitchen 1
Interior
Interior Features Carpet Free
Cooling Central Air
Inclusions S/S Fridge, S/S built-in Dishwasher, S/S exhaustive Microwave, S/S Stove, Washer/dryer, customized window covering , Electrical garage door opener, Modern ceiling lights, 1 Garage parking, EV charge potential..
Laundry In-Suite Laundry
Exterior
Exterior Feature Landscaped
Parking Features Other
Garage Spaces 1.0
Pool None
View Garden
Roof Type Asphalt Shingle
Lot Frontage 14.0
Lot Depth 40.0
Total Parking Spaces 1
Building
Building Age New
Foundation Concrete
Others
Senior Community Yes
Security Features Carbon Monoxide Detectors,Smoke Detector
ParcelsYN No





