REQUEST A TOUR If you would like to see this home without being there in person, select the "Virtual Tour" option and your agent will contact you to discuss available opportunities.
In-PersonVirtual Tour

$ 816,814
Est. payment /mo
New
4 Leeds CT Bracebridge, ON P1L 0B7
4 Beds
3 Baths
UPDATED:
Key Details
Property Type Townhouse
Sub Type Att/Row/Townhouse
Listing Status Active
Purchase Type For Sale
Approx. Sqft 2000-2500
Subdivision Monck (Bracebridge)
MLS Listing ID X12946712
Style Bungaloft
Bedrooms 4
Tax Year 2026
Property Sub-Type Att/Row/Townhouse
Property Description
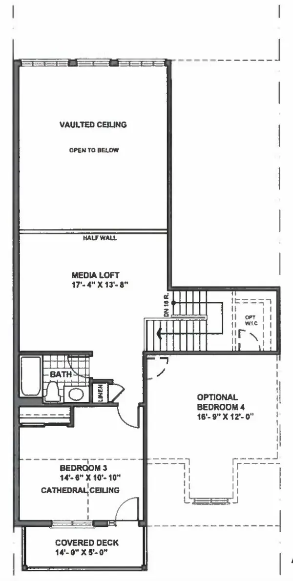
Welcome to Waterways of Muskoka, where carefree living meets the natural beauty of cottage country. This bright and spacious new construction bungaloft townhome offers 2,320 sq ft of thoughtfully designed living space and the convenience of freehold ownership with common element condominium services, including snow removal and lawn maintenance.The main floor features a stunning great room with vaulted ceiling, filling the home with natural light and creating an open, airy feel. A main floor primary bedroom with walk-in closet provides comfortable one-level living, while a second main floor bedroom is ideal for guests or a home office. Main floor laundry adds everyday convenience.Upstairs, a large media loft offers flexible living space for relaxing or entertaining and is complemented by two additional bedrooms, perfect for family or visiting guests.New construction means there is still time to choose your finishes and personalize the home to suit your style. Enjoy modern design, generous space, and low-maintenance living in the sought-after Waterways of Muskoka community. Sparrow Model
Location
State ON
County Muskoka
Area Muskoka
Rooms
Family Room No
Basement Full
Kitchen 1
Interior
Interior Features Primary Bedroom - Main Floor
Cooling Other
Fireplaces Type Natural Gas
Fireplace Yes
Heat Source Gas
Exterior
Garage Spaces 1.0
Pool None
Waterfront Description Indirect
Roof Type Asphalt Shingle
Lot Frontage 30.98
Lot Depth 72.73
Total Parking Spaces 2
Building
Building Age New
Foundation Poured Concrete
Others
Monthly Total Fees $287
ParcelsYN Yes
Listed by RE/MAX HALLMARK CHAY REALTY
GET MORE INFORMATION
Follow Us



